ESCLUSIVA Brighigna Immobiliare e Ts77Immobiliare
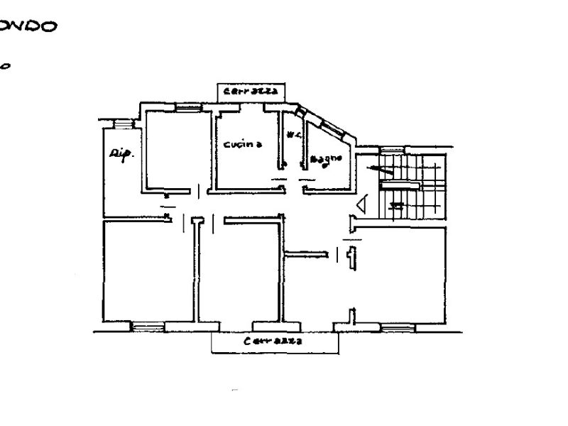
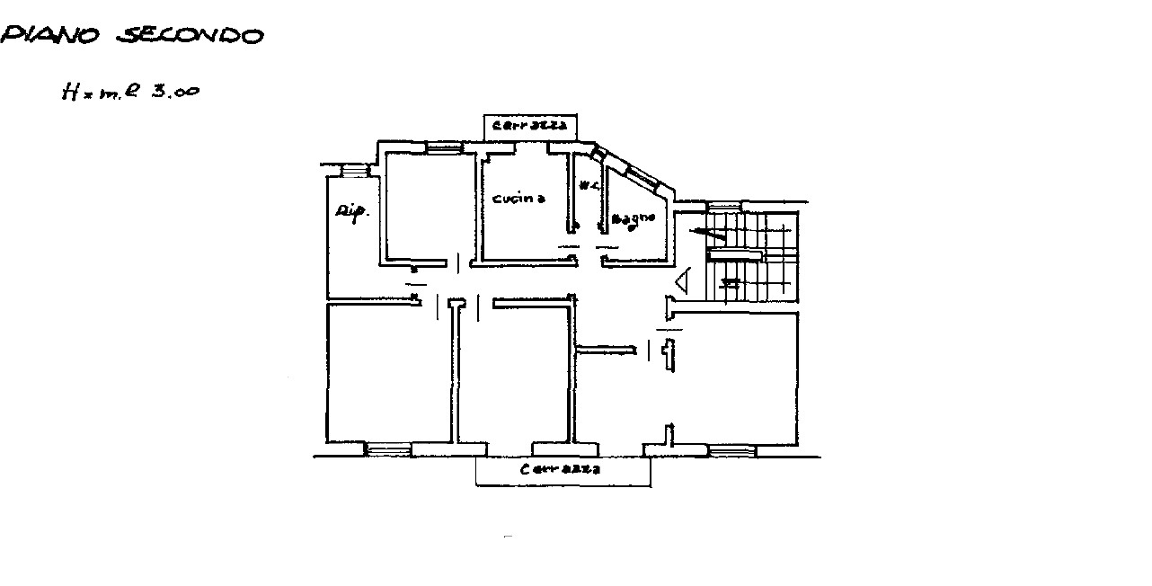
Firenze, pressi Viale dei Mille – In una tranquilla strada interna, proponiamo un elegante appartamento di 6,5 vani, con una superficie di 125 mq catastali, situato al secondo piano di una palazzina di tre piani, unica al piano e senza ascensore. L’immobile si distingue per la sua distribuzione funzionale e luminosa.
L’appartamento si apre su una spaziosa zona giorno/disimpegno che conduce alla doppia sala, dotata di un terrazzino che affaccia sulla facciata. Proseguendo, si accede alla cucina abitabile, che dispone di un secondo balcone e doppi bagni finestrati (uno ampio e l’altro di servizio). La zona notte è composta da due comode camere matrimoniali, una camera più piccola e un grande ripostiglio, che può essere trasformato in uno studio o cabina armadio.
A completare la proprietà, una cantina e un grande garage sottostante, con un’area di manovra comoda e facilmente accessibile. Il garage, di 15,90 mq, ha un’altezza di 2,70 m e un’apertura di 2,47 m, ed è dotato di un lavandino con acqua.
L’immobile è termo autonomo e le spese condominiali sono contenute, rendendo questa soluzione particolarmente vantaggiosa per chi cerca un’abitazione spaziosa e ben servita in una zona centrale ma tranquilla.
Richiesta: € 460.000,00
Per motivi di privacy l’ubicazione dell’immobile verrà comunicata solo su contatto diretto, ma si precisa che l’immobile è nelle immediate vicinanze.

































